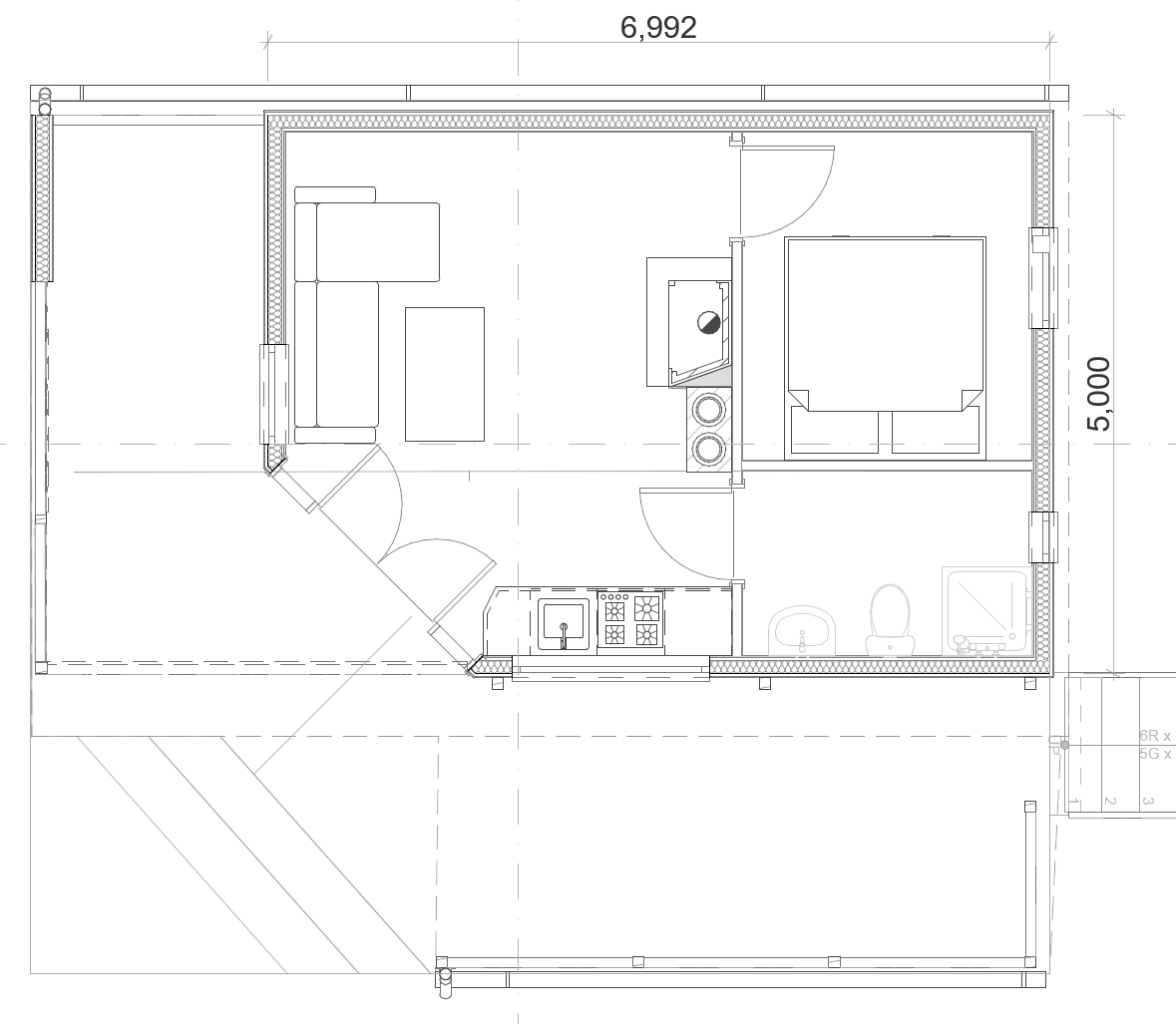
Horyzont

„Horyzont" – Letniskowy Domek z Jednospadowym Dachem

Specyfikacja

  • Szerokość: 5,0 m
  • Głębokość: 7,0 m
  • Wysokość: 3,7 m
  • Powierzchnia na gruncie: 35,0 m²
  • Powierzchnia użytkowa: 29,7 m²
  • Wysokość parteru: 2,1 m

Plan wnętrza

Rzut budynku – plan wnętrza

Warianty wykończenia

Opcje dodatkowe

  • Zadaszenie tarasu
  • Zadaszenie nad wejściem

Typ ściany

  • Ściana letniskowa
  • Ściana całoroczna

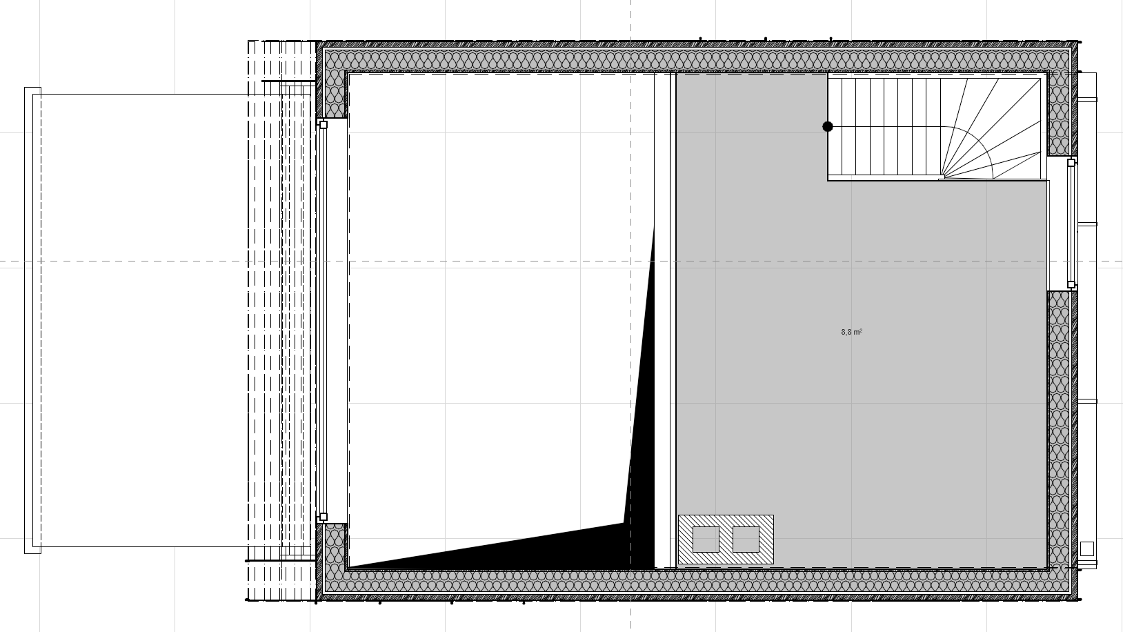
MiniLoft

„MiniLoft" – Nowoczesny Domek z Antresolą

Specyfikacja

  • Szerokość: 4,0 m
  • Głębokość: 5,5 m
  • Wysokość: 5,6 m
  • Powierzchnia na gruncie: 23,2 m²
  • Powierzchnia użytkowa: 19,0 m² + 8,0 m² antresola
  • Wysokość parteru: 2,41 m
  • Wysokość antresoli: 2,08 m
  • Kąt nachylenia dachu:

Plan wnętrza

Rzut budynku – plan wnętrza parter
Rzut budynku – plan wnętrza piętro

Warianty wykończenia

Opcje dodatkowe

  • Zadaszenie tarasu
  • Zadaszenie nad wejściem
  • Składana markiza

Typ ściany

  • Ściana letniskowa
  • Ściana całoroczna ( zmiana wymiarów zewn.)

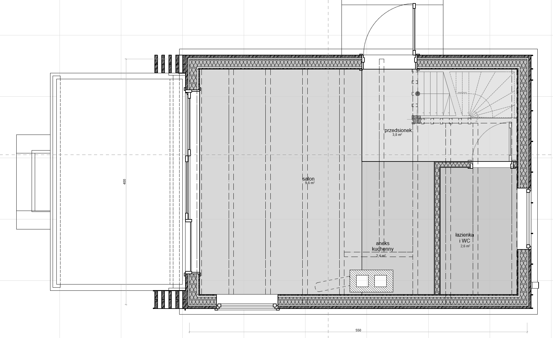
Skandynaw 35

"Skandynaw 35" – kompaktowa elegancja w stylu Północy

Specyfikacja

  • Szerokość: 5,0 m
  • Głębokość: 7,0 m
  • Wysokość: 3,71 m
  • Powierzchnia na gruncie: 35,0 m²
  • Powierzchnia użytkowa: 31,1 m²
  • Wysokość parteru: 2,5 m
  • Kąt nachylenia dachu: 15°

Plan wnętrza

Rzut budynku – plan wnętrza

Warianty wykończenia

Typ ściany

  • Ściana letniskowa
  • Ściana całoroczna

Trio A-Frame

„Trio" – Domek A-Frame (nawiązanie do trójkątnego kształtu i nowoczesnej stylistyki)

Specyfikacja

  • Szerokość: 5,4 m
  • Głębokość: 5,44 m
  • Wysokość: 4,87 m
  • Powierzchnia na gruncie: 32,5 m²
  • Powierzchnia użytkowa: 23,8 m²
  • Wysokość parteru: 2,2 m
  • Wysokość antresoli: 1,98 m
  • Kąt nachylenia dachu: 60°

Plan wnętrza

Rzut budynku – plan wnętrza
Rzut budynku – plan wnętrza

Warianty wykończenia

Typ ściany

  • Ściana letniskowa
  • Ściana całoroczna

Najczęstsze pytania

Czy potrzebne jest pozwolenie na budowę?

Nie – budynek do 35 m² mieści się w zgłoszeniu (zgodnie z aktualnymi przepisami). Lokalnie mogą obowiązywać dodatkowe wymagania – pomagamy w formalnościach.

Jaki jest standard ocieplenia?

Standardowo 150-200 mm wełny mineralnej + wiatroizolacja i paroizolacja. Na życzenie dobieramy grubości pod warunki całoroczne.

Czy możliwe są zmiany projektu?

Tak – modyfikujemy układ pomieszczeń, przeszklenia, materiały wykończeniowe oraz doposażenie (tarasy, wiaty, kominki, pompy ciepła).

Zrealizuj swój dom marzeń

Bezpłatna wycena i profesjonalna konsultacja

Skontaktuj się
WSPÓŁPRACA

Nasi partnerzy

Partner Gamrat Partner Milesi Partner Sodra Partner Mansard