Balkonova

„Balkonova" – Domek z Antresolą i Tarasem (nawiązanie do opcjonalnego balkonu i nowoczesnego, letniskowego charakteru)

Specyfikacja

  • Szerokość: 5,0 m
  • Głębokość: 7,0 m
  • Wysokość: 5,9 m
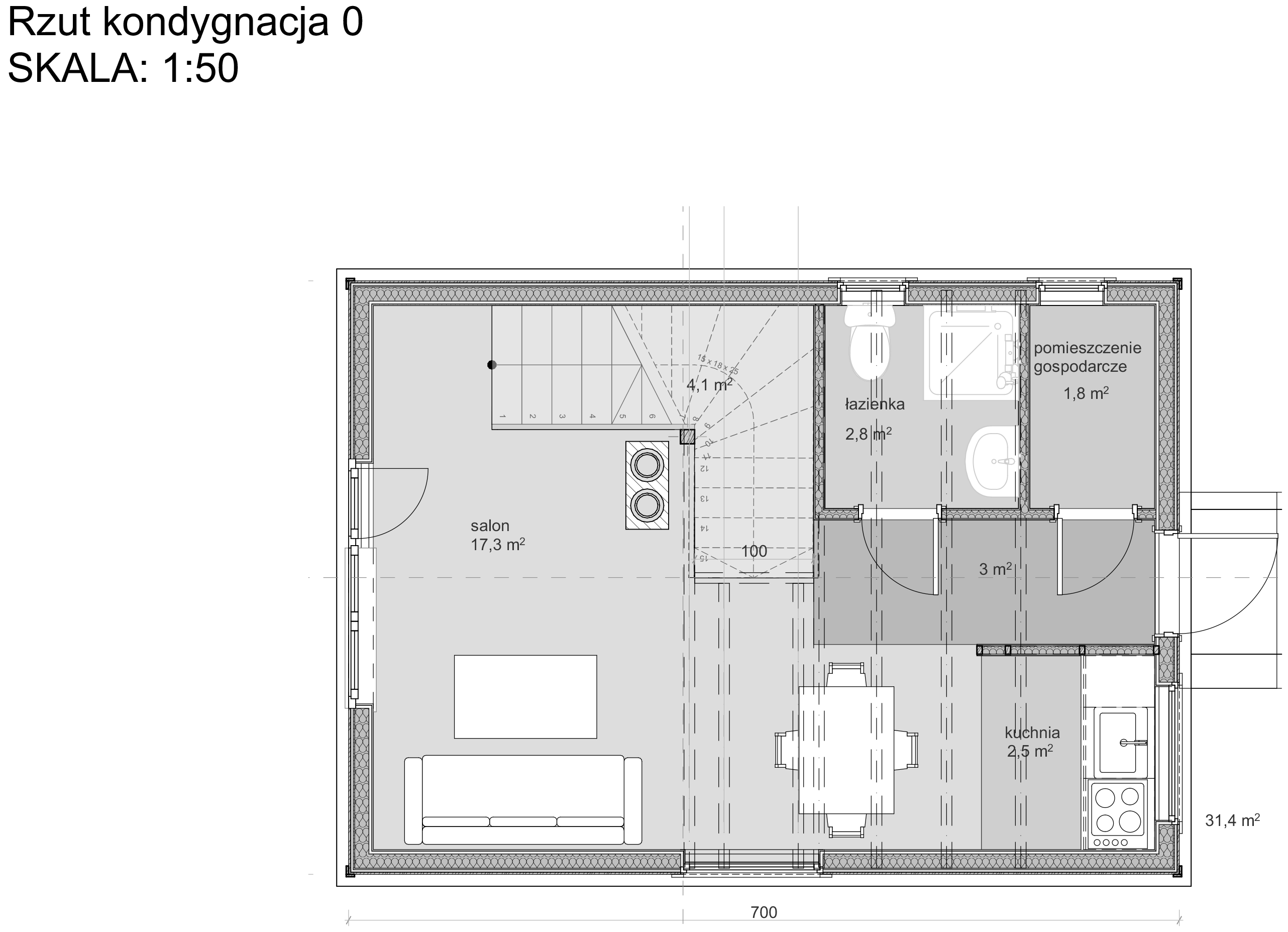
  • Powierzchnia na gruncie: 35,0 m²
  • Powierzchnia użytkowa: 45,8 m²
  • Wysokość parteru: 2,5 m
  • Wysokość antresoli: 2,08 m

Plan wnętrza

Rzut budynku – parter
Rzut budynku – piętro

Warianty wykończenia

Opcje dodatkowe

  • Balkon
  • Taras

Typ ściany

  • Ściana letniskowa
  • Ściana całoroczna (zmiana wymiarów zewnętrznych)

Moderna

„Moderna" – Domek z Antresolą (nawiązanie do nowoczesnej formy i minimalistycznej bryły)

Specyfikacja

  • Szerokość: 7,0 m
  • Głębokość: 5,5 m
  • Wysokość: 6,2 m
  • Powierzchnia na gruncie: 38,5 m²
  • Powierzchnia użytkowa: 40,0 m² + 19,0 m² antresola
  • Wysokość parteru: 2,2 m
  • Wysokość antresoli: 2,2 m
  • Kąt nachylenia dachu: 35°

Plan wnętrza

Rzut budynku – parter
Rzut budynku – piętro

Warianty wykończenia

Opcje dodatkowe

  • Zadaszenie tarasu
  • Zadaszenie nad wejściem
  • Składana markiza

Typ ściany

  • Ściana letniskowa
  • Ściana całoroczna (zmiana wymiarów zewn.)

Panorama Loft

„Panorama Loft" – Domek z Antresolą i Tarasem

Specyfikacja

  • Szerokość: 6,0 m
  • Głębokość: 7,1 m
  • Wysokość: 6,6 m
  • Powierzchnia na gruncie: 44,0 m²
  • Powierzchnia użytkowa: 37,5 m² + 20 m² antresola
  • Wysokość parteru: 2,5 m
  • Kąt nachylenia dachu: 45°

Plan wnętrza

Rzut budynku – parter
Rzut budynku – piętro

Warianty wykończenia

Typ ściany

  • Ściana letniskowa
  • Ściana całoroczna

Skandynaw 70

„Skandynaw 70" – Drugi z projektów domków w stylu skandynawskim

Specyfikacja

  • Szerokość: 11 m
  • Głębokość: 6 m
  • Wysokość: 3,71 m
  • Powierzchnia na gruncie: 66,0 m²
  • Powierzchnia użytkowa: 53,8 m²
  • Wysokość parteru: 2,6 m
  • Kąt nachylenia dachu: 15°

Plan wnętrza

Rzut budynku – parter

Warianty wykończenia

Typ ściany

  • Ściana letniskowa
  • Ściana całoroczna

Najczęstsze pytania

Czy potrzebne jest pozwolenie na budowę?

Nie – budynek do 35 m² mieści się w zgłoszeniu (zgodnie z aktualnymi przepisami). Lokalnie mogą obowiązywać dodatkowe wymagania – pomagamy w formalnościach.

Jaki jest standard ocieplenia?

Standardowo 150-200 mm wełny mineralnej + wiatroizolacja i paroizolacja. Na życzenie dobieramy grubości pod warunki całoroczne.

Czy możliwe są zmiany projektu?

Tak – modyfikujemy układ pomieszczeń, przeszklenia, materiały wykończeniowe oraz doposażenie (tarasy, wiaty, kominki, pompy ciepła).

Zrealizuj swój dom marzeń

Bezpłatna wycena i profesjonalna konsultacja

Skontaktuj się
WSPÓŁPRACA

Nasi partnerzy

Partner Gamrat Partner Milesi Partner Sodra Partner Mansard